btn_menu (011) 7926 1649 / (011) 15-5842-5077
Fotos Fotos
Datos Volver
No acepta Previaje

Departamento en Venta 3 Ambientes Isidro Casanova Pb Apto Credito

Location charrua 4100 - Isidro Casanova

Prev
Prev
Venta
Bajó de precio
USD 27.000 Rebaja 23 %
Propiedad

Departamentos tipo casa

Ambientes

3 ambientes

Dormitorio

2 dormitorios

Baño

1 baño

Credito

Con apto crédito

Superficie

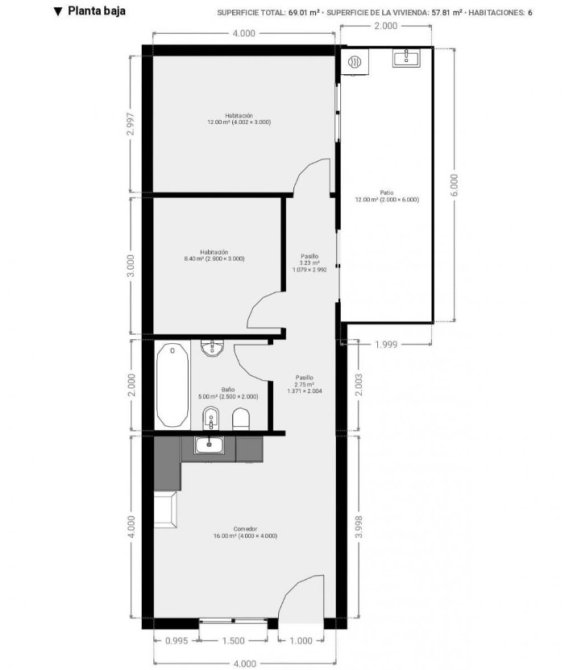
Sup. cubierta 60m2

Superficie Total

Sup. total 70m2

Pisos

1 piso

Antiguedad

Antigüedad 30 años

Condicion

Estado Excelente

Situación

Situación Habitada

Datos Acerca de la propiedad


Hogar en planta baja en Isidro Casanova, situado estratégicamente en la calle Charrúa 4100, un punto intermedio entre las calles Parral y Terrada. Este P.H. ofrece una entrada independiente que le da la bienvenida a un espacio diseñado pensando en su comodidad.

La cocina, corazón del hogar, está completamente equipada con bajo mesada y alacenas, además de un termo tanque. Un baño completo con bañera y dos habitaciones con pisos cerámicos y estufas de tiro balanceado. El estado general de la propiedad es muy bueno, listo para mudarse. Patio con pileta de lavar y conexión para lavarropas, ideal para los momentos de ocio y tareas domésticas. Gracias a la ubicación tiene acceso conveniente a líneas de colectivo como el 49, 126 y 624.

Contáctenos por cualquier consulta a inmobiliaria Quetglas para más información.
Leer menos

Comodidades Comodidades

Patio

Con patio

Cochera

Sin cochera

Pileta

Sin pileta

Jardin

Sin jardín

Con parrilla

Mascotas

Acepta mascotas

Zona centrica

No es zona céntrica

Vista al mar

Sin vista al mar

Ver más vermas

Datos Ubicación

Venta
Bajó de precio

USD 27.000 Rebaja 23 %

Datos Propiedades Relacionadas

Contacto

¿Te interesa esta propiedad?
Contactate ahora

Ver
Chatea con nosotros
Whatsapp